Zamljišče
ATRAKTIVNO ZEMLJIŠČE Z GRADBENIM DOVOLJENJEM IN POGLEDOM NA MORJE
Zamljišče
1.960 m2
Banjole, Medulin
Elektrika
Voda
Za stavbo
Značilnosti
Opis
Občina Medulin predstavlja eno najbolj privlačnih in zaželenih turističnih destinacij na Hrvaškem, ki z leti vedno več vlaga v podporne objekte in infrastrukturo, zaradi česar je vse bolj primerna tudi za družinsko življenje. Na območju občine Medulin, v enem njenih najlepših delov, se nahaja naselje Banjole, ki ga, tako kot celotno občino, s svojo idealno geografsko lego, podpornimi objekti in čudovito obalo uvršča med zelo zaželene, iskane in privlačne lokacije.
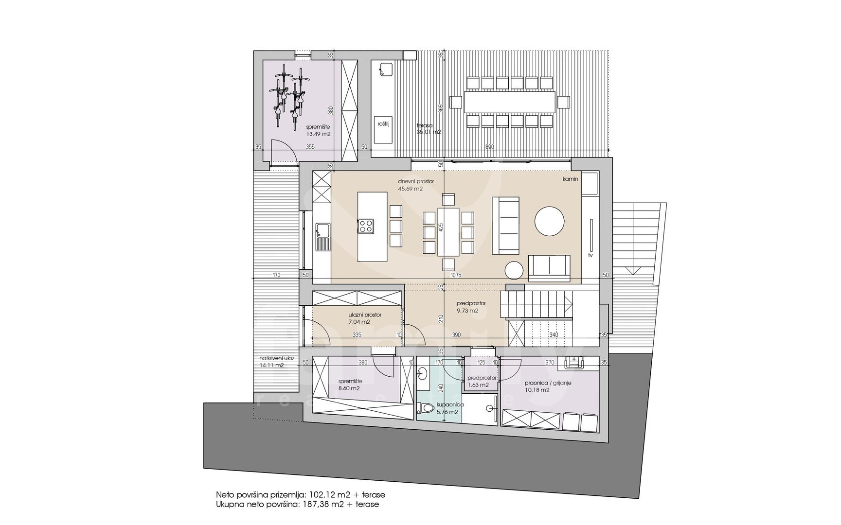
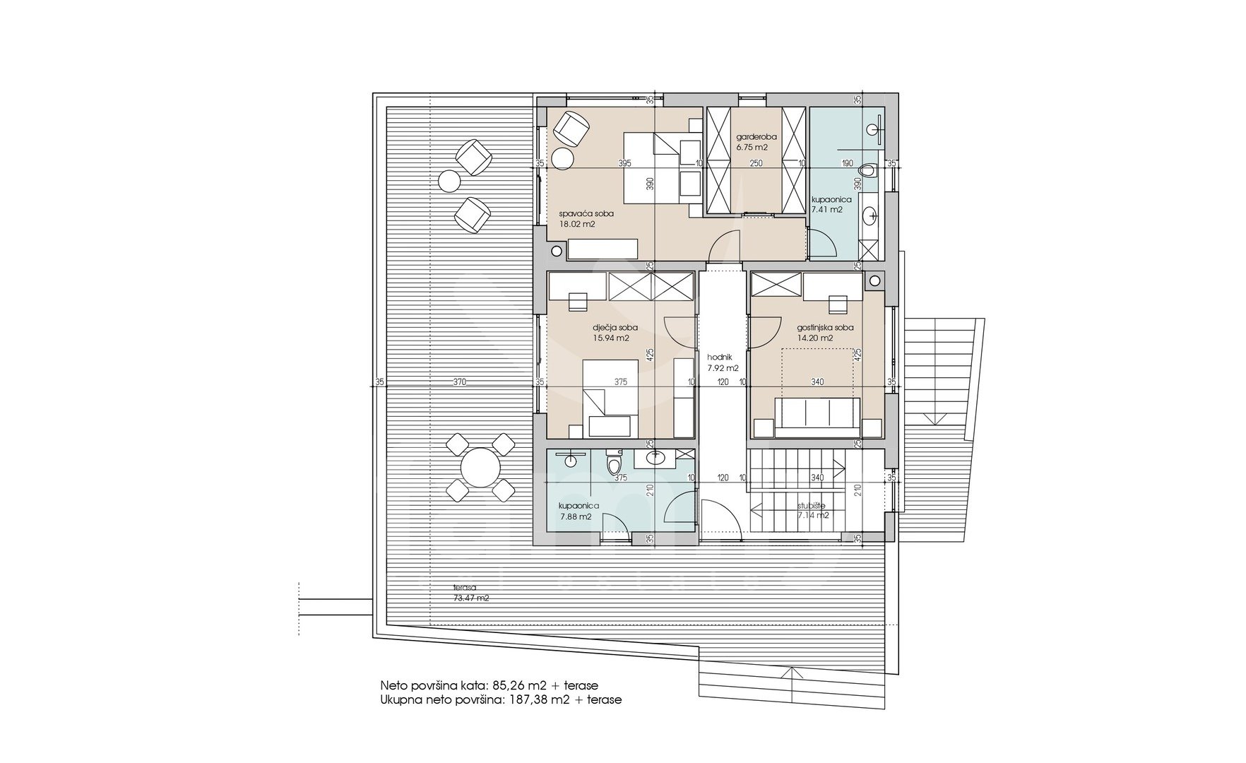
Ta prostorna, privlačna gradbena parcela velikosti 1960 m2 se nahaja v Banjolah, le 290 metrov od morja. Parcela je pravilne oblike z urejeno dostopno cesto in priključki v bližini. Gradbeno dovoljenje za čudovito vilo z bazenom je pridobljeno in je pravnomočno, ta čudovita vila pa bi se po projektu raztezala v dveh nadstropjih, v pritličju bi bila prostorna dnevna soba s kuhinjo in jedilnico, kopalnica, dve prostorni shrambi, pralnica in prostorna terasa z žarom, v prvem nadstropju pa bi bile tri spalnice z dvema kopalnicama in prostorna terasa velikosti 70 m2. Sobe v pritličju so dovolj velike, da jih je mogoče po potrebi ali želji preurediti v spalnice. Na parceli je predvideno parkirišče za štiri parkirna mesta, 35 m2 velik bazen in del zemljišča, ki bi predstavljal zeleno površino. Priključki so kanalizacija na parceli, prav tako voda, elektrika je oddaljena nekaj metrov, komunalne storitve pa so tudi plačane. Lokacija je idealna, glede bližine morja in plaž ter vsega potrebnega za vsakdanje življenje.
Omenjena nepremičnina predstavlja zelo privlačno nepremičnino zaradi svoje privlačne lokacije, veljavnega gradbenega dovoljenja, velike površine in bodočemu lastniku ponuja možnost začetka gradnje nepremičnine za zelo udobno družinsko življenje ali možnost opravljanja gostinske dejavnosti z oddajanjem nepremičnine v najem z zagotovljenim hitrim donosom vloženih sredstev.
ZA VSE OSTALE INFORMACIJE POKLIČITE:
+385981748680
dean.zunic@family-nekretnine.hr
Dean Žunić
Pooblaščeni posrednik
Dodatne informacije
- Lastništvo: Urejen
- Lastniško dovoljenje: Da
- Gradbeno dovoljenje: Da
Lokacija


