Zamljišče
GRADBENO ZEMLJIŠČE Z GRADBENIM DOVOLJENJEM
Zamljišče
550 m2
Nedešćina, Labin
Za stavbo
Značilnosti
Opis
Istrska regija velja za eno najprimernejših in najprimernejših regij za življenje in ponuja številne naravne lepote, ki jih podpirata toplo sredozemsko podnebje in zelo prijazno lokalno prebivalstvo. Na hribu nad Rabcem se nahaja srednjeveško mesto Labin, kjer se bogastvo arhitekture in kulturno-zgodovinskih spomenikov očarljivo združuje s številnimi umetniškimi ateljeji.
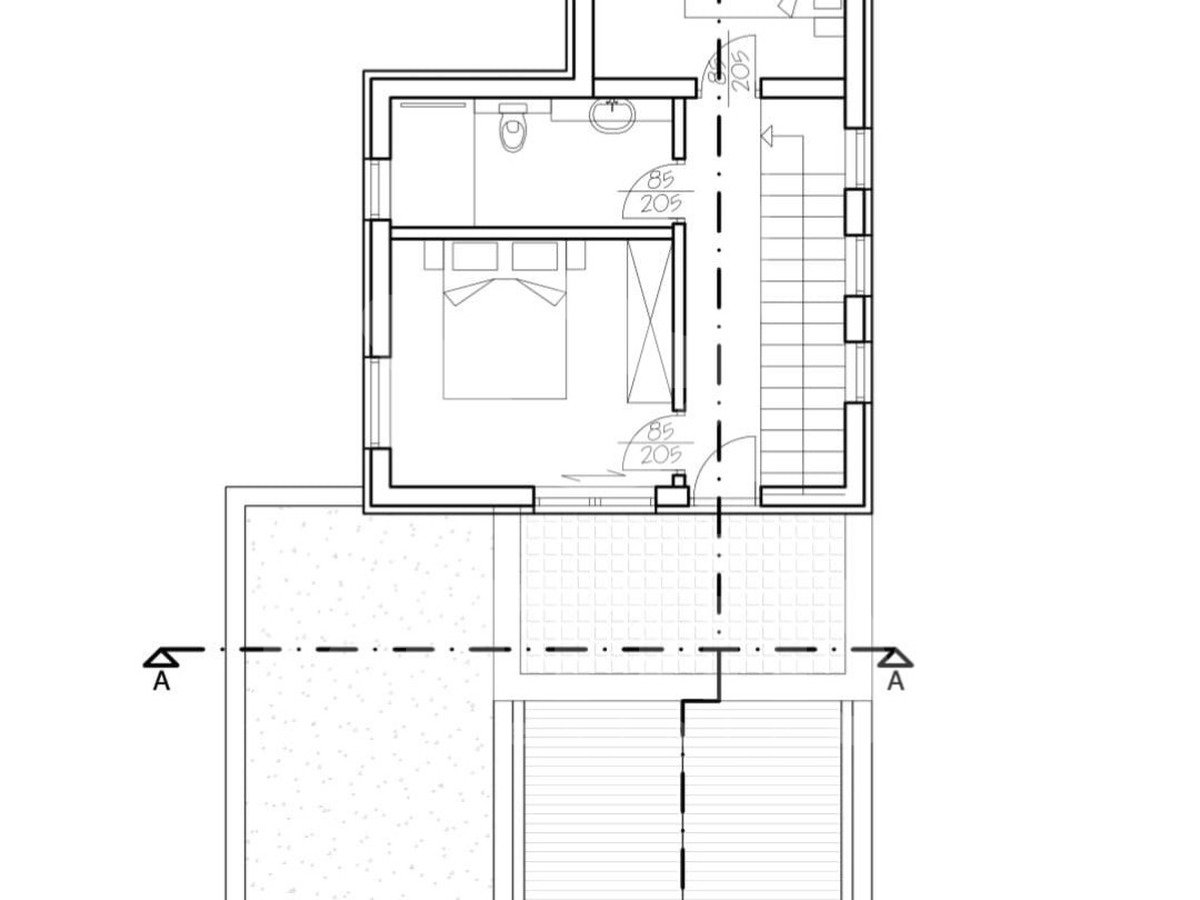
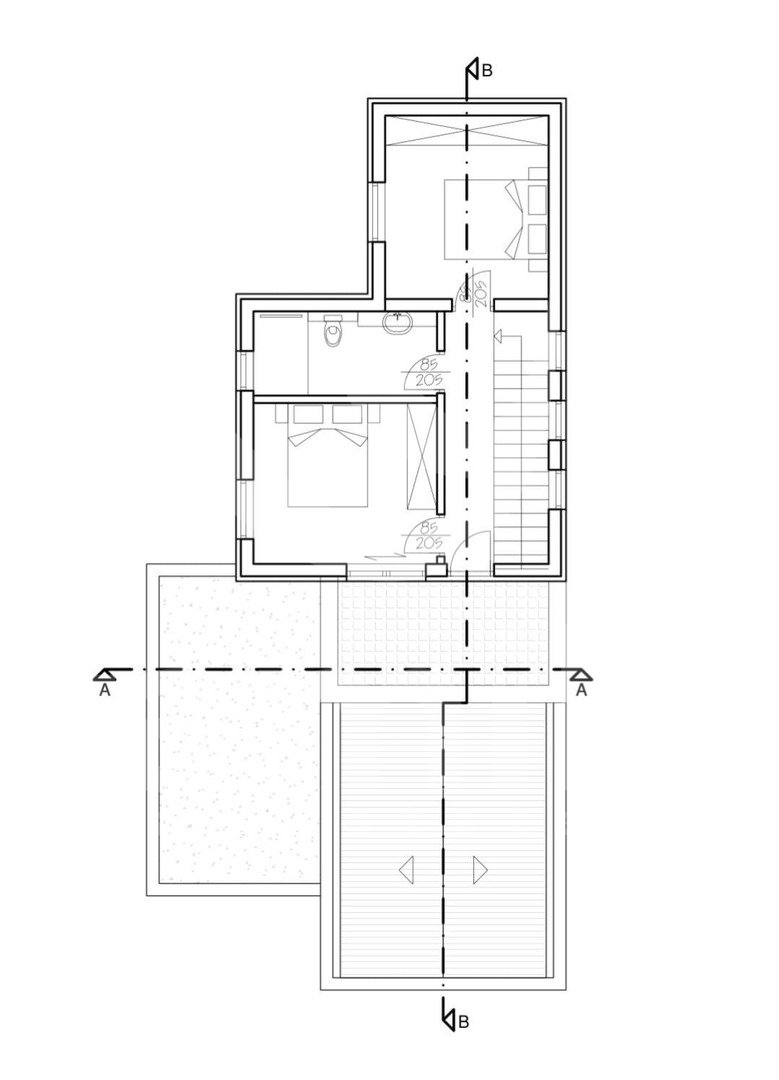
Znotraj občine Labin, natančneje v mestu Nedešćina, se nahaja omenjena zelo privlačna gradbena parcela velikosti 550 m2. Parcela ima pravilno pravokotno obliko, raven teren in urejeno dostopno cesto. Ima tudi gradbeno dovoljenje za gradnjo atraktivne večnadstropne stavbe z bazenom. Vsi potrebni priključki se nahajajo v neposredni bližini parcele.
Navedena cena se nanaša na dokončano stavbo po sistemu "ključ v roke", medtem ko je njena gradnja predvidena v 12 mesecih od sklenitve pogodbe.
Omenjena nepremičnina združuje prednosti dokončane stavbe z privlačnim zemljiščem in gradbenim dovoljenjem, zaradi česar je idealna za hitro vselitev ali varno naložbo. Nahaja se na mirni in privlačni lokaciji, sodobna zasnova pa zagotavlja funkcionalnost in udobje za bodoče lastnike.
ZA VSE OSTALE INFORMACIJE POKLIČITE:
+385 98 174 8680
dean.zunic@family-nekretnine.hr
Dean Zunic
Pooblaščeni zastopnik
Dodatne informacije
- Lastništvo: Urejen
- Lastniško dovoljenje: Da
- Gradbeno dovoljenje: Da
Lokacija


