Appartamento
NUOVO EDIFICIO DI ALTA QUALITÀ IN POSIZIONE RICERCATA CON GIARDINO
Appartamento
63 m2
Ližnjan
Piano Pianterreno
Camere da letto 2
Buoni sconto 1
nan
Proprietà
Descrizione
Nella parte sud-orientale della penisola istriana si trova il Comune di Lisignano, sempre più attraente. Come è evidente, Lisignano sta diventando una delle principali destinazioni turistiche dell'Istria grazie al suo splendido orientamento geografico, alla vicinanza alla città di Pola, all'aeroporto e ai numerosi investimenti in infrastrutture, servizi e costa degli ultimi anni.
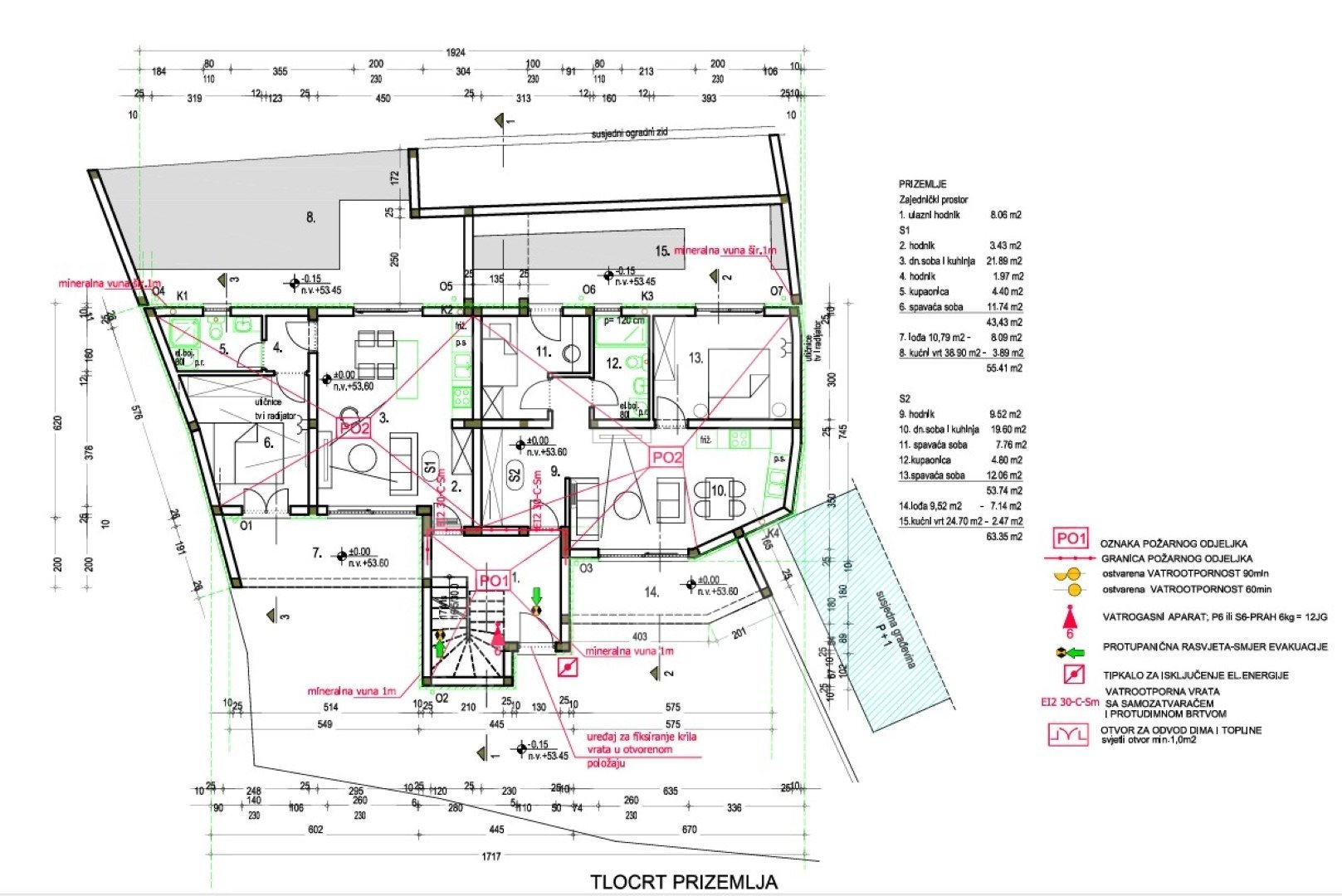
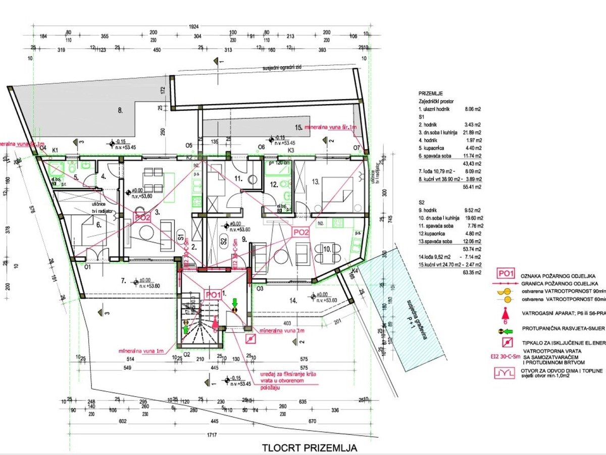
L'edificio di alta qualità sopra menzionato, in fase di costruzione, con un totale di 7 unità abitative, si trova a Lisignano, a soli 1,5 km dal mare. L'appartamento in questione si trova al piano terra dell'edificio e ha una superficie abitabile di 63 m². È composto da un ingresso, un soggiorno molto luminoso collegato alla cucina e alla sala da pranzo, in cui verrà installata una parete scorrevole in vetro con tapparelle elettriche, attraverso la quale si accede a una loggia di 7 m², due comode camere da letto e un bagno. Anche nelle camere da letto saranno installate pareti scorrevoli in vetro, che consentiranno l'accesso al giardino. I pavimenti dell'intero appartamento saranno rivestiti con ceramiche di alta qualità, l'impianto di riscaldamento e raffreddamento sarà regolato da un condizionatore Mitsubishi e saranno installati infissi in PVC bianco con triplo vetro e tapparelle elettriche. La struttura interpiano è realizzata in cemento armato, che garantisce ulteriormente la resistenza e la qualità della costruzione.
Il completamento dei lavori è previsto per la fine del 2026.
L'immobile di alta qualità ed economico sopra menzionato rappresenta un immobile molto interessante per la sua qualità costruttiva, la posizione e la vicinanza al mare, e offre diverse opzioni al futuro proprietario, sia per l'abitazione familiare che per la possibilità di avviare attività turistiche affittandolo, con un ritorno sull'investimento più rapido.
PER ULTERIORI INFORMAZIONI, CHIAMARE:
+385 98 174 8680
dean.zunic@family-nekretnine.hr
Dean Žunić
Agente autorizzato
Ulteriori informazioni
- Riscaldamento: Klima
- Infissi: PVC
- Parquet: Nema
- Tipo di pareti: Cigla
- Altezza del soffitto: 260 cm
- Gradini: Eccellente
- Stato dell'edificio: Eccellente
- Proprietà: Ordinato
- Foglio proprietario: Sì
- Permesso di localizzazione: Sì
- Permesso di costruzione: Sì
Posizione


