Ricerca immobili
Min
Max
Min
Max

Appartamento

APPARTAMENTO DI NUOVA GENERAZIONE CON TRE CAMERE DA LETTO - UNA COMBINAZIONE DI SPAZIO, LUCE E COMFORT

Appartamento

105 m2

Pula

Piano 2

Camere da letto 3

Buoni sconto 3

nan 1

Proprietà

Tipo: Triplo
Orientamento: Nord-est
Certificato energetico: A+
Uno sguardo a: Verde
Piano: 2
Numero di piani: 2
Elettricità
Acqua
Fognatura
Allacciamento telefonico
Internet ottico
Distanza dal mare: 1.400 m
Distanza dal centro: 2.100 m

Descrizione

Pola non è solo una città di storia e mare, ma anche un luogo dove la vita quotidiana si svolge più lentamente, con maggiore qualità e moderazione. La combinazione di spirito mediterraneo, infrastrutture urbane e vicinanza alla natura la rende una scelta ideale per la vita familiare, ma anche per un investimento intelligente a lungo termine. Questo moderno edificio di nuova costruzione si trova in un contesto di questo tipo, progettato con un obiettivo chiaro: offrire comfort, funzionalità e valore a lungo termine.

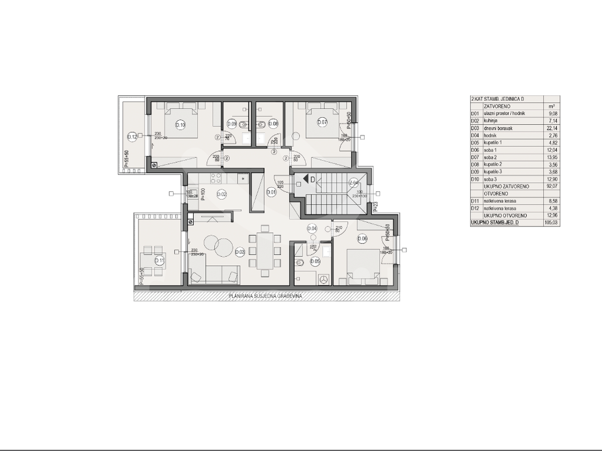
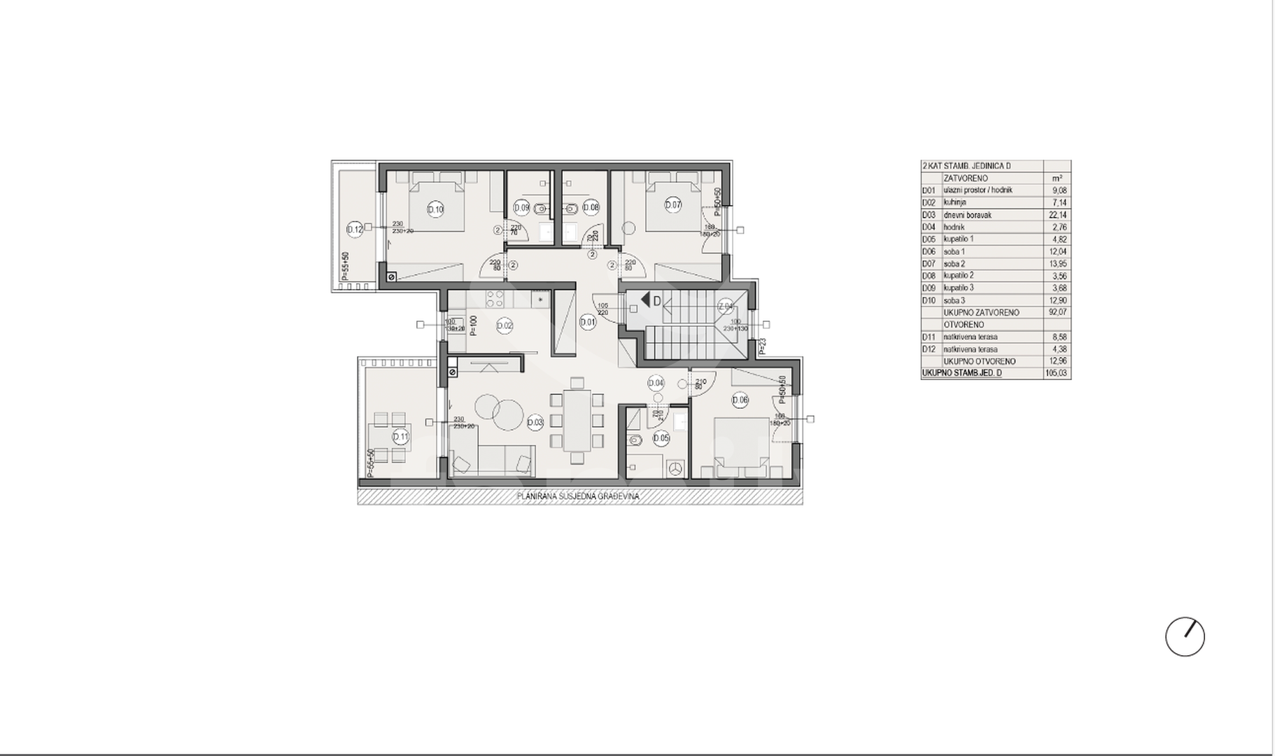
Al secondo piano di un edificio moderno si trova un appartamento con tre camere da letto con una superficie totale di 105,03 m², di cui 92,07 m² di superficie abitabile interna, mentre altri 12,96 m² sono occupati da due terrazze coperte. L'appartamento è estremamente curato e si compone di un ampio ingresso/disimpegno, cucina separata, ampio e luminoso soggiorno, 3 comode camere da letto, 3 bagni, una rarità e un grande vantaggio nella vita di tutti i giorni, un ulteriore disimpegno che collega la parte privata dell'appartamento e due terrazze coperte, ideali per il caffè mattutino o il relax serale.
La disposizione dell'appartamento separa nettamente la zona giorno dalla zona notte, garantendo privacy, tranquillità e funzionalità, ideale per una famiglia, ma anche per chi desidera semplicemente più spazio senza compromessi.

L'appartamento è costruito con particolare attenzione alla durevolezza e ai moderni standard abitativi. I pavimenti sono rivestiti con piastrelle in ceramica di alta qualità dal design moderno, tutte le aperture sono dotate di tapparelle elettriche, infissi in PVC e un buon isolamento acustico e termico. L'offerta è ulteriormente arricchita dal riscaldamento a pavimento per il massimo comfort durante tutto l'anno e da impianti di climatizzazione di alta qualità per il riscaldamento e il raffrescamento. Ogni dettaglio è stato curato con l'obiettivo di garantire un comfort duraturo e ridurre i costi di manutenzione futuri.

Perché questa è un'offerta di prim'ordine?

- nuova costruzione con un chiaro standard qualitativo
- un raro appartamento con tre camere da letto e tre bagni
- spazi abitativi ampi e funzionali
- due terrazze
- un eccellente rapporto tra metratura, disposizione e qualità
- un immobile ideale sia come abitazione che come investimento

Questo non è un appartamento che si acquista impulsivamente, è un appartamento che si sceglie con cura. Se cercate una nuova costruzione che offra spazio, qualità e valore a lungo termine, questa proprietà merita la vostra attenzione.

PER ULTERIORI INFORMAZIONI CHIAMARE:

+385 98 139 7496
marin.cude@family-nekretnine.hr
Marin Čude
Assistente alla mediazione


Ulteriori informazioni

  • Riscaldamento: Klima, Podno grijanje
  • Infissi: PVC
  • Tipo di pareti: Cigla
  • Tipo di facciata: Odlično, Termo izolacija
  • Piastra-copertura: Eccellente
  • Altezza del soffitto: 260 cm
  • Gradini: Eccellente
  • Stato dell'edificio: Eccellente
  • Scala esterna: Eccellente
  • Scale interne: Eccellente
  • Proprietà: Ordinato
  • Foglio proprietario:
  • Permesso di costruzione:
  • Certificato energetico: A+

Posizione

Assistente di mediazione

Assistente di mediazione

Marin Čude

marin.cude@family-nekretnine.hr

+385981397496

Lingue: HrvatskiEnglish

Invia un messaggio: