Zamljišče
GRADBENO ZEMLJIŠČE S PROJEKTOM NA MIRNI LOKACIJI
Zamljišče
862 m2
Peruški, Marčana
Elektrika
Voda
Za stavbo
Značilnosti
Opis
Istrska županija velja za eno najprimernejših regij za življenje, njena lega pa prispeva k prijetnemu sredozemskemu podnebju. Naravne lepote tega območja zagotovo prispevajo k mirnemu in prijetnemu življenju. Marčana je idealna za vse, ki iščejo drugačno obliko počitnic, daleč od poletnega vrveža in prenatrpanih turističnih središč. Marčana je občina na zahodu Hrvaške, ki pokriva zelo veliko območje obale in je skozi leta vlagala v svojo infrastrukturo ter se razvijala v vseh pogledih. Marčana se nahaja severno od Pulja.
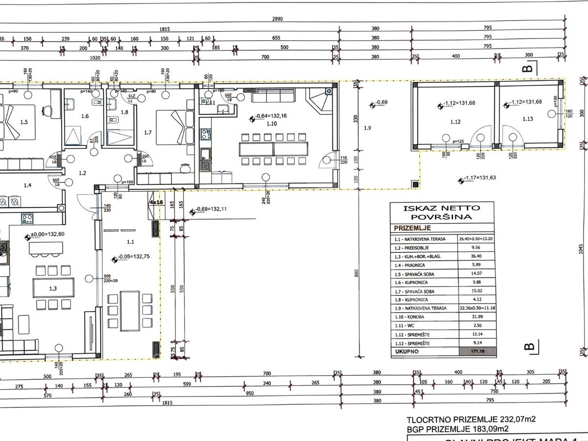
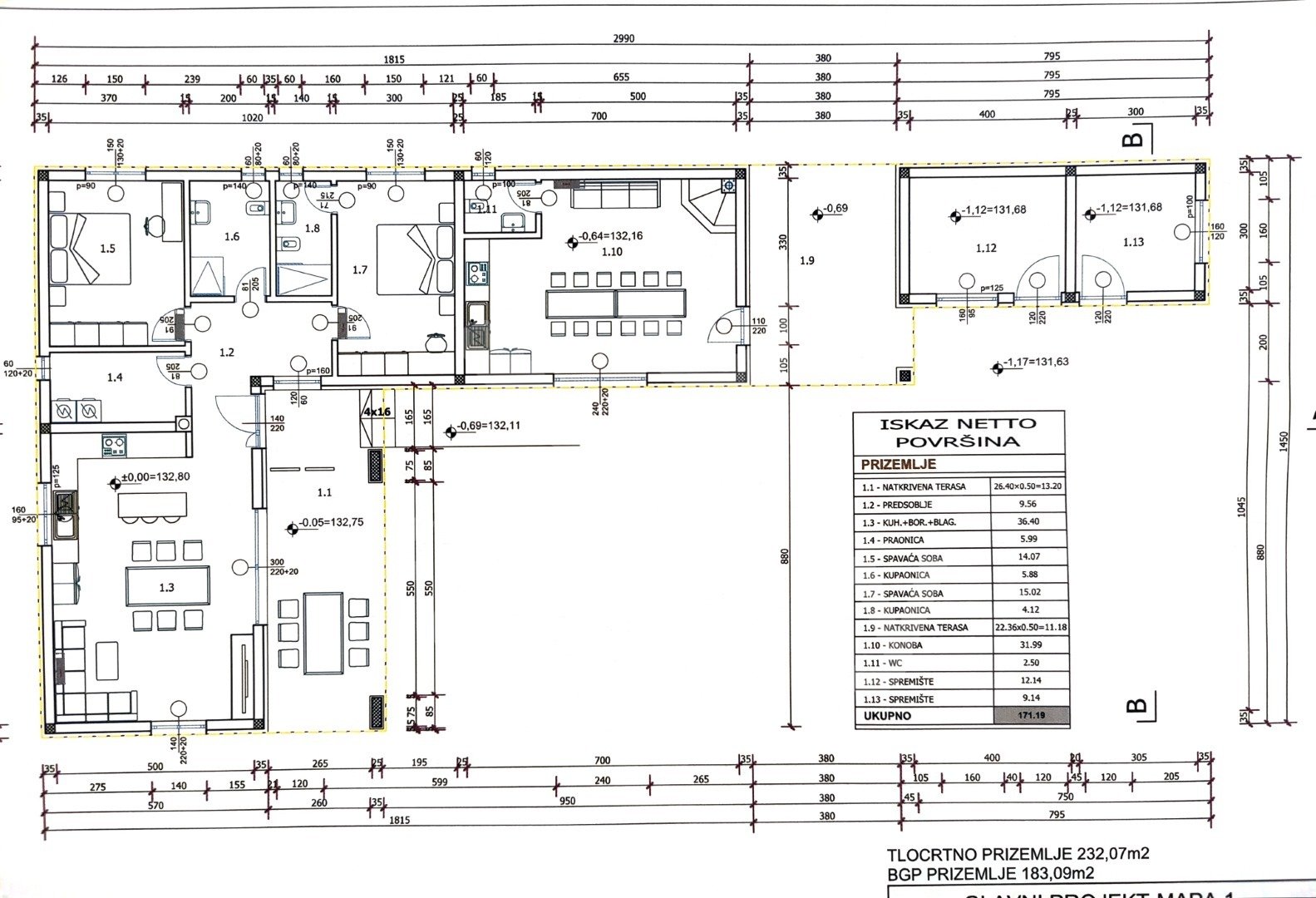
Zemljišče se nahaja v neposredni bližini središča istoimenskega naselja s skupno površino 862 m2. Zemljišče s projektom na parceli je pravilne oblike z izjemno dobro dostopno cesto. Zemljišče je od morja oddaljeno le 1300 m. Omenjena parcela je obdana z zelenjem in je zagotovo dobra lega za gradnjo. Plačana je tretjina komunalnih storitev. Ima vodo, elektriko, projekt in gradbeno dovoljenje. Tlorisna bruto površina stanovanjske družinske stavbe je 232 m2, v obstoječem projektu pa so predvidene neto površine v pritličju: pokrita terasa 13,20 m2, vhodna dvorana 9,56 m2, kuhinja + dnevna soba + jedilnica 36,40 m2, pralnica 5,99 m2, spalnica 14,07 m2, kopalnica 5,88 m2, spalnica 15,02 m2, kopalnica 4,12 m2, pokrita terasa 11,18 m2, konoba 31,99 m2, stranišče 2,50 m2, na voljo sta tudi shrambi 12,14 m2 in 9,14 m2, skupna neto površina pa znaša 171,19 m2. Zemljišče je idealno jugozahodno orientirano, dvorišče in zelenica hiše pa sta pozidani 45 %, tj. 390 m2, z načrtovanimi 3 parkirnimi mesti.
Občina Marčana ima razvejano obalo s skupno 36 km obale, ki se začne od Raškega zaliva na severu do Budavskega zaliva na jugu. Prav ta mir in razprostranjenost, skupaj s sredozemskim podnebjem, zagotovo prispevata k izbiri omenjene destinacije za nakup zemljišča, da bi začeli graditi in se naselili prav tukaj.
ZA VSE DODATNE INFORMACIJE IN OGLEDE ME KONTAKTIRAJTE;
+385 91 539 6446
edita.premate@family-nekretnine.hr
Edita Premate Panić
Pomočnik za mediacijo
Dodatne informacije
- Lastništvo: Urejen
- Lastniško dovoljenje: Da
- Gradbeno dovoljenje: Da
Lokacija

