Hiša
HIŠA Z DVEMA STANOVANJSKIMA ENOTAM IN BAZENOM
Hiša
243 m2
Šišan, Ližnjan
Spalnice 4
Bazen
Parkiranje 4
Značilnosti
Opis
Ližnjan je vas na skrajnem jugovzhodu Istre. Nahaja se na pobočju, ki se spušča proti morju. Geografska lega Ližnjana ponuja pogled na Kvarnerski zaliv, ki sega vse do otokov Cres in Lošinj. Občina Ližnjan vključuje tudi bližnja naselja Valtura, Muntić, Jadreške in Šišan.
V Šišanu se prodaja hiša v gradnji s skupno bivalno površino 243 m2. Nahaja se na parceli velikosti 506 m2 kot samostojna stavba, ki jo sestavljata pritličje in prvo nadstropje. Je moderne gradnje, pri gradnji so bili uporabljeni vrhunski materiali in PVC okna. Pritličje je odprtega tlorisa in vsebuje kuhinjo z jedilnico in dnevnim prostorom z dostopom do terase in bazena, dve spalnici in kopalnico.
V prvem nadstropju se nahaja kuhinja z dnevno sobo, dve spalnici, kopalnica in terasa s pogledom na morje.
Hiša je trenutno v nedokončani fazi gradnje in se kot taka prodaja. Možen je dogovor z investitorjem o nadaljevanju gradnje hiše.
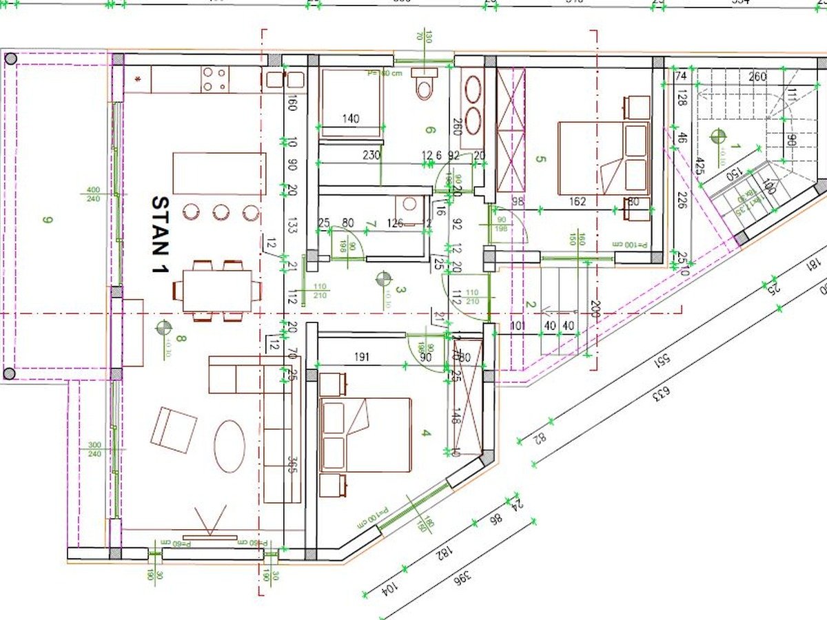
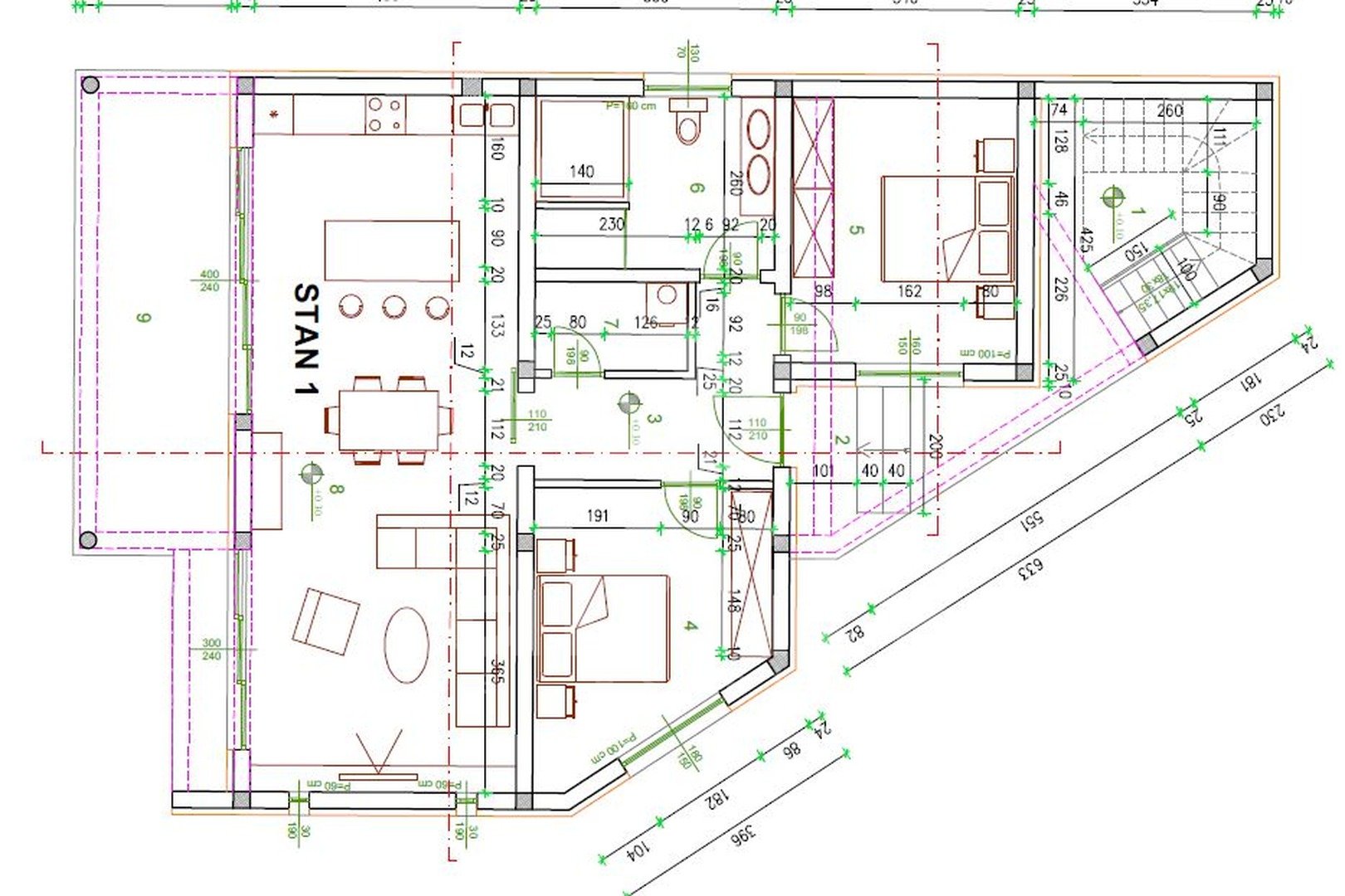
Stanovanje 1 v pritličju - 125,39 m2, obsega naslednje: Predsoba 7,20 m2, dnevna soba s kuhinjo in jedilnico 40,20 m2, Soba 1: 13,35 m2, Soba: 13,60 m2, Kopalnica 9,35 m2, Shramba 3,09 m2 in Pokrita terasa 20 m2
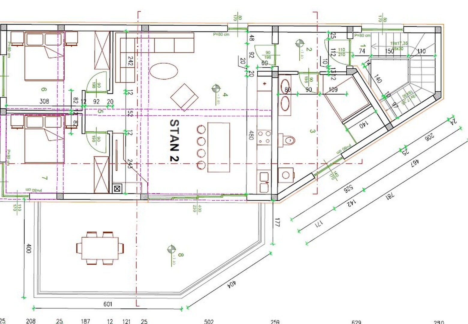
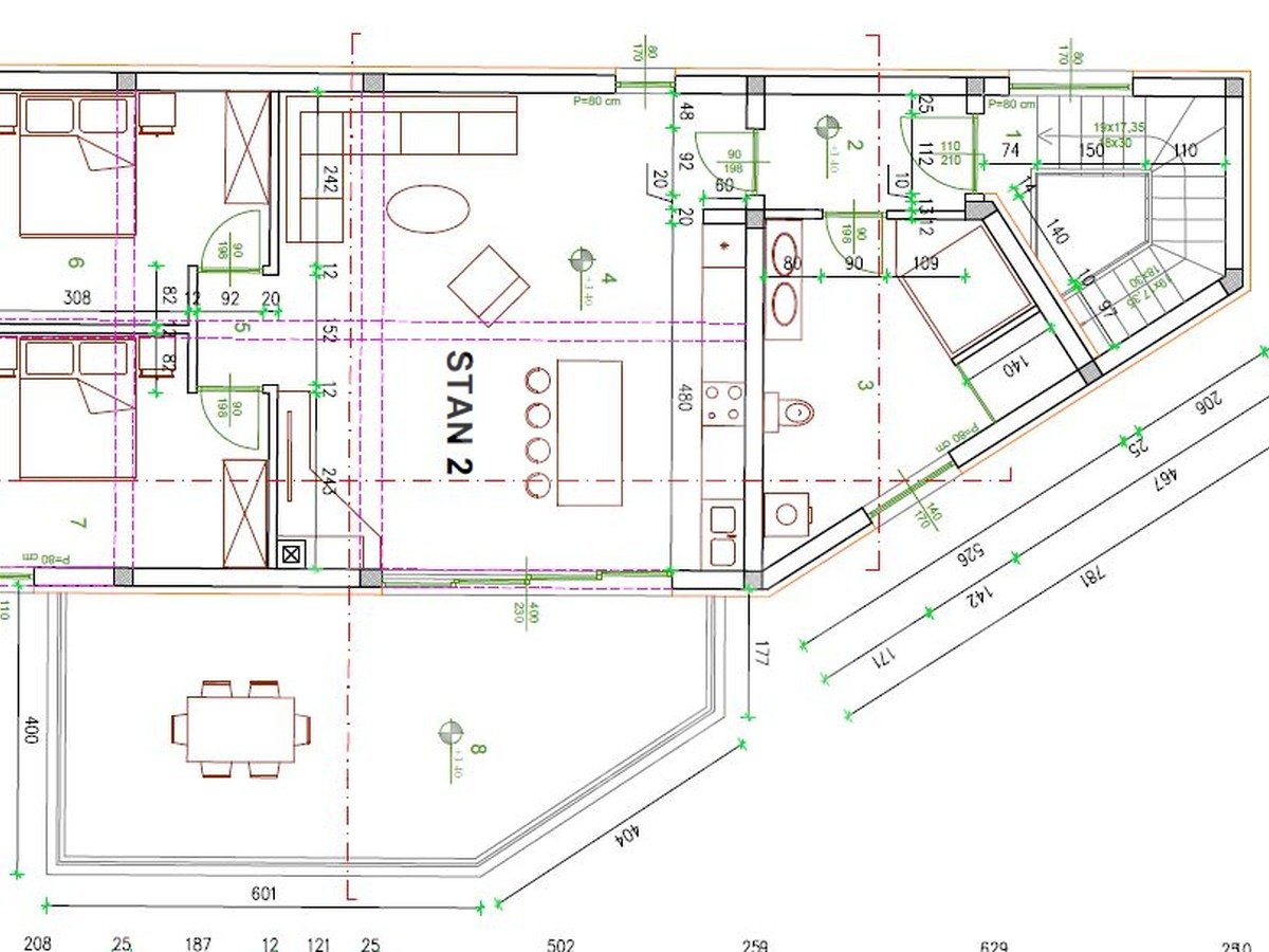
Stanovanje 2 v prvem nadstropju - 118,33 m2, obsega naslednje: Predsoba 1,72 m2, dnevna soba s kuhinjo in jedilnico 42,72 m2, Soba 1: 12,65 m2, Soba 2: 12,65 m2, Kopalnica 13,75 m2, odprta terasa 29 m2. Vhodna površina je 7,15 m2, površina stopnišča pa 11,45 m2.
Nepremičnina se nahaja v hoje oddaljenosti od centra, obdana s počitniškimi hišami, zato je kot taka privlačna lokacija tako za bivanje kot za naložbe v turizem.
ZA VSE OSTALE INFORMACIJE POKLIČITE:
+385 98 174 8680
dean.zunic@family-nekretnine.hr
DEAN ŽUNIĆ
Pooblaščeni posrednik
+385 91 539 6446
edita.premate@family-nekretnine.hr
Edita Premate Panić
Pomočnik za mediacijo
Dodatne informacije
- Ogrevanje: Klima, Podno grijanje
- Mizarstvo: Odlično, PVC
- Material sten: Cigla
- Streha: Ravni krov
- Lastništvo: Urejen
- Lastniško dovoljenje: Da
- Gradbeno dovoljenje: Da
Lokacija

