Iskanje nepremičnin
Min
Max
Min
Max

Zamljišče

EKSKLUZIVNO RUSTIKALNO POSESTVO Z GRADBENIM DOVOLJENJEM IN ŠTEVILNIMI MOŽNOSTMI

Zamljišče

19.400 m2

Pazin

Elektrika

Voda

Za stavbo

Značilnosti

Ogled na: Zelenje
Elektrika
Voda
Dostopna cesta
Oddaljenost od morja: 16.000 m
Oddaljenost do centra: 5.000 m

Opis

Pazin je mesto, ki se nahaja v osrčju istrskega polotoka in je bogato z naravnimi viri, iz leta v leto pa ponuja vse več dogodkov in je središče kulturnega, športnega, izobraževalnega, gospodarskega in zabavnega življenja z naraščajočim turističnim obiskom.

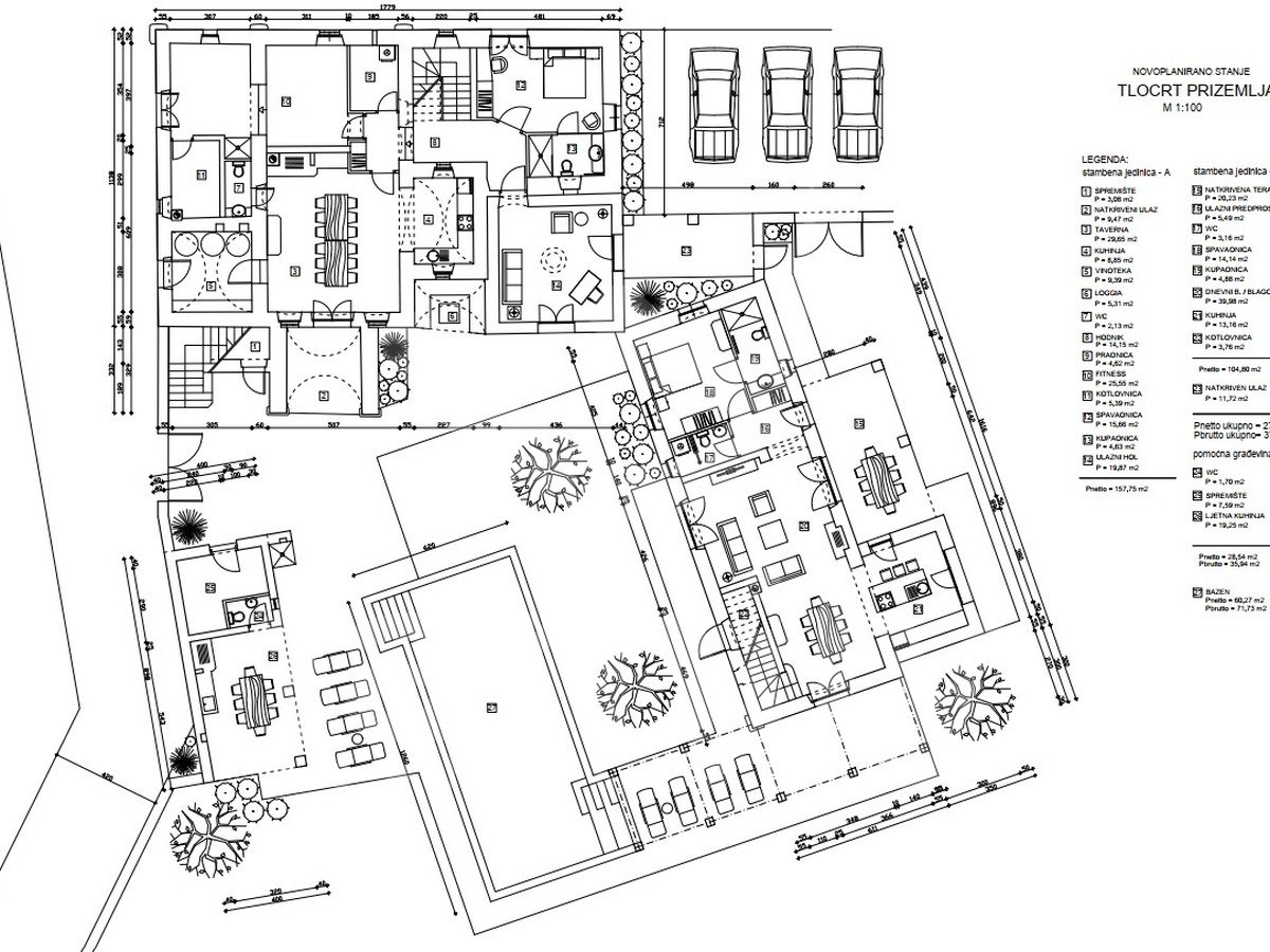
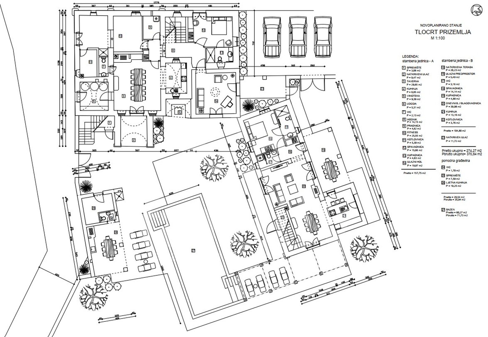
V majhni vasici, le 5 km od Pazina, se nahaja ta čudovita nepremičnina s starinami zavidljive površine, ob kateri se nahaja gradbeno zemljišče velikosti približno 4000 m2 in izjemno prostorna kmetijska parcela velikosti 15.400 m2, ki skupaj predstavljata izjemen nepremičninski kompleks z visokim potencialom. Predlog vključuje projekt za adaptacijo starine ter gradbeno dovoljenje in plačane komunalne storitve. Nepremičnini imata števce za elektriko in vodo.

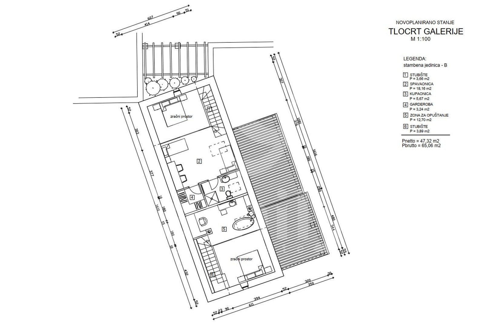
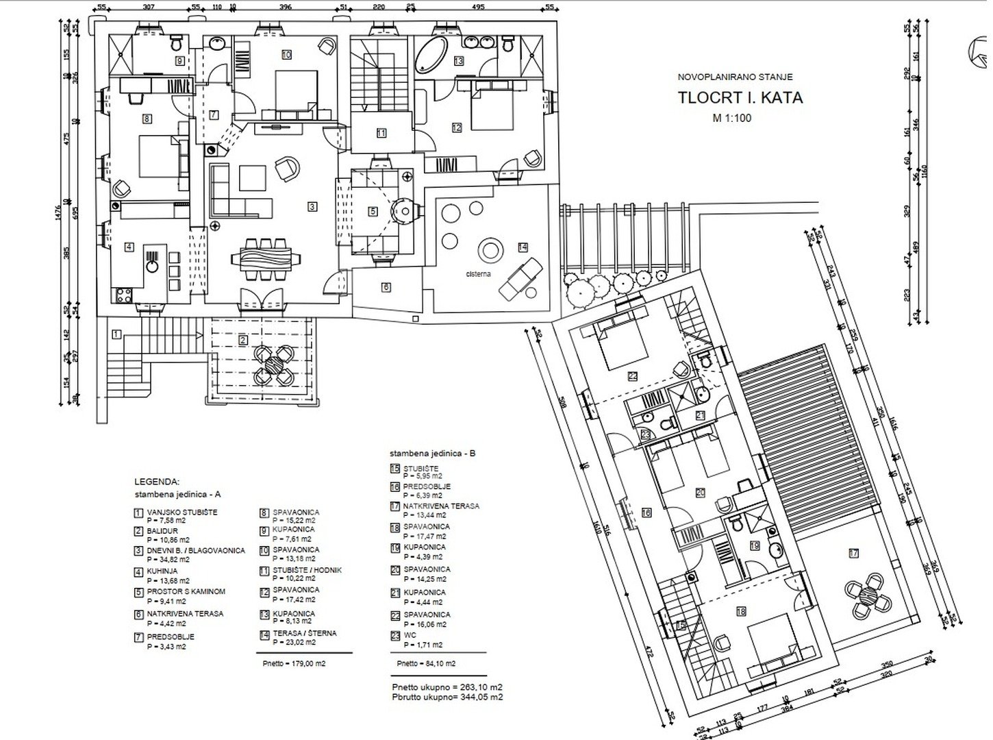
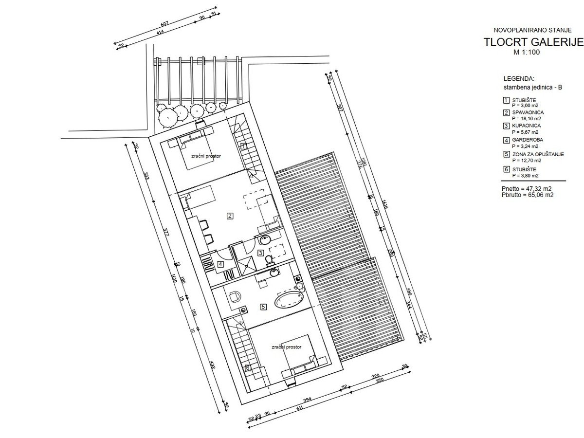
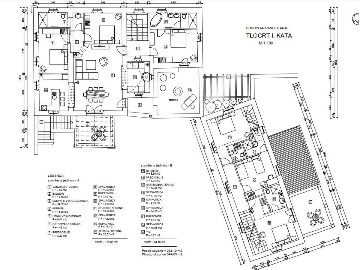
Po predlaganem projektu pritličje stavbe vključuje pokrit vhod, dve kuhinji, konobo, shrambo, vinsko klet, dva stranišča, dve kopalnici, pralnico, fitnes sobo, kurilnico, dnevno sobo z jedilnico, dve spalnici s pomožnim objektom, ki bi bil letna kuhinja s shrambo in straniščem. Prvo nadstropje bi obsegalo balidur, dnevno sobo z jedilnico, kuhinjo, prostor s kaminom, pokrito teraso, teraso s cisterno, šest spalnic, eno stranišče, štiri kopalnice. V mansardi nepremičnine bi bila galerija, ki bi jo sestavljali stopnišče, spalnica, kopalnica, garderoba, prostor za sprostitev.

Rustikalna nepremičnina je lahko kompleks kamnitih hiš za namene turizma ali družinskega življenja oziroma za ukvarjanje s turistično-kmetijsko dejavnostjo, družinsko kmetijo in podobno.

Poleg prilagoditve stare hiše po projektu obstaja možnost gradnje več objektov glede na površino gradbenega zemljišča in gradnje različnih terenov, bazenov itd. glede na prostoren vrt v smislu kmetijskih zemljišč.

Nepremičnina je omembe vredna in zelo zanimiva glede na zazidljivo območje, območje zazidljivih in kmetijskih zemljišč, mirno lokacijo in možnost ukvarjanja z različnimi dejavnostmi, kot so turizem, gostinstvo, družinsko kmetovanje (OPG) itd.

ZA VSE OSTALE INFORMACIJE POKLIČITE:
+385981748680
dean.zunic@family-nekretnine.hr
Dean Žunić
Pooblaščeni posrednik


Dodatne informacije

  • Lastništvo: Urejen
  • Lastniško dovoljenje: Da
  • Lokacija z dovoljenjem za lokacijo: Da
  • Gradbeno dovoljenje: Da

Lokacija

Pooblaščeni zastopnik

Pooblaščeni zastopnik

Dean Žunić

dean.zunic@family-nekretnine.hr

+385981748680

Jeziki: HrvatskiEnglishDeutschItaliano

Pošlji sporočilo na: