Casa
EDIFICIO CON ALTO POTENZIALE COMMERCIALE IN CENTRO CITTÀ
Casa
700 m2
Centar, Pula
Camere da letto 15
Buoni sconto 5
Proprietà
Descrizione
Nell'estremo sud della penisola istriana si trova una piccola città romana chiamata Pola. Pola è ricca di storia, infrastrutture e retaggi romani che le conferiscono un'atmosfera speciale, rendendola una delle principali destinazioni turistiche della Croazia negli ultimi dieci anni.
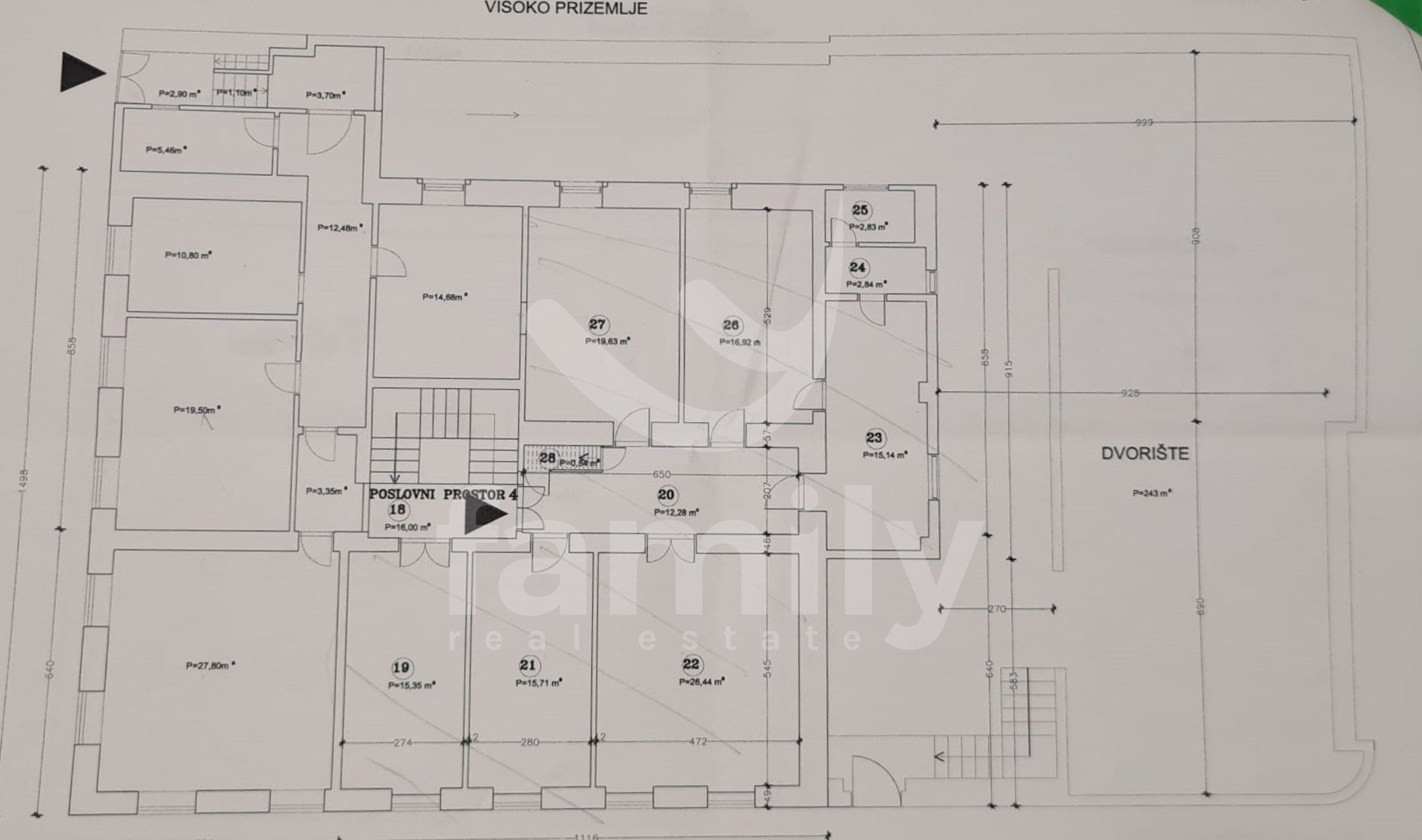
Nel cuore della città di Pola, in una posizione attraente e vivace, si trova questo spazioso edificio su tre piani con una superficie totale di 700 m² e un cortile di 260 m². I tre piani sono composti da un piano terra/seminterrato, un piano terra rialzato e una soffitta rialzata. Una superficie di 86 m², pari a un appartamento, è stata utilizzata per scopi residenziali, mentre il resto è stato adibito a spazio commerciale adatto a diverse attività. L'edificio è composto da 31 vani separati con possibilità di ampliamento, il che lo rende un immobile ideale per l'affitto turistico. La planimetria è visibile nelle foto dell'annuncio.
PUNTI SALIENTI:
700 m²
Potenziale commerciale
Posizione interessante
L'edificio in questione, grazie alla sua superficie, alla sua destinazione d'uso commerciale e residenziale e, soprattutto, alla sua posizione, rappresenta un immobile molto interessante per un futuro acquirente, offrendo diverse possibilità, sia per un piacevole soggiorno in termini di vita familiare grazie alla vicinanza di tutti i servizi di supporto: scuole, asili, negozi, parchi, centro città e simili, sia per l'acquisto dello stesso per svolgere diverse attività e ottenere un rapido ritorno sull'investimento, con la possibilità di un utilizzo congiunto sia a fini abitativi che commerciali. Sicuramente un investimento altamente redditizio per il futuro proprietario!
PER ULTERIORI INFORMAZIONI O VISIONI:
Dean Žunić
Agente autorizzato
+385 98 174 86 80
dean.zunic@family-nekretnine.hr
Ulteriori informazioni
- Infissi: Drvena
- Parquet: Laminat
- Tipo di facciata: Dobro
- Tetto: Kanalice
- Proprietà: Ordinato
- Foglio proprietario: Sì
- Permesso di occupazione: Sì
Posizione


