Zemljište
ZEMLJIŠTE SA ISHODOVANOM GRAĐEVINSKOM DOZVOLOM I PROJEKTOM
Zemljište
526 m2
Svetvinčenat
Za gradnju
Svojstva
Opis
Renesansni gradić Svetvinčenat, jedan je od istarskih dragulja sa bogatom turističkom ponudom te brojnim manifestacijama koje se odigravaju u izvanredno atraktivnim povijesnim prostorima ovog gradića. Savičentu krasi renesansni trg “Placa” sa kaštelom Morosini-Grimani, simbolom samog mjesta i jednim od najvažnijih utvrda mletačke vojske tog vremena u Istri. Važan dio kulturne baštine Svetvinčenta su očuvani te iznimno cijenjeni ostaci zidnih fresaka koje se nalaze u crkvici sv. Vincenta u blizini gradskog groblja te u crkvi sv. Katarine.
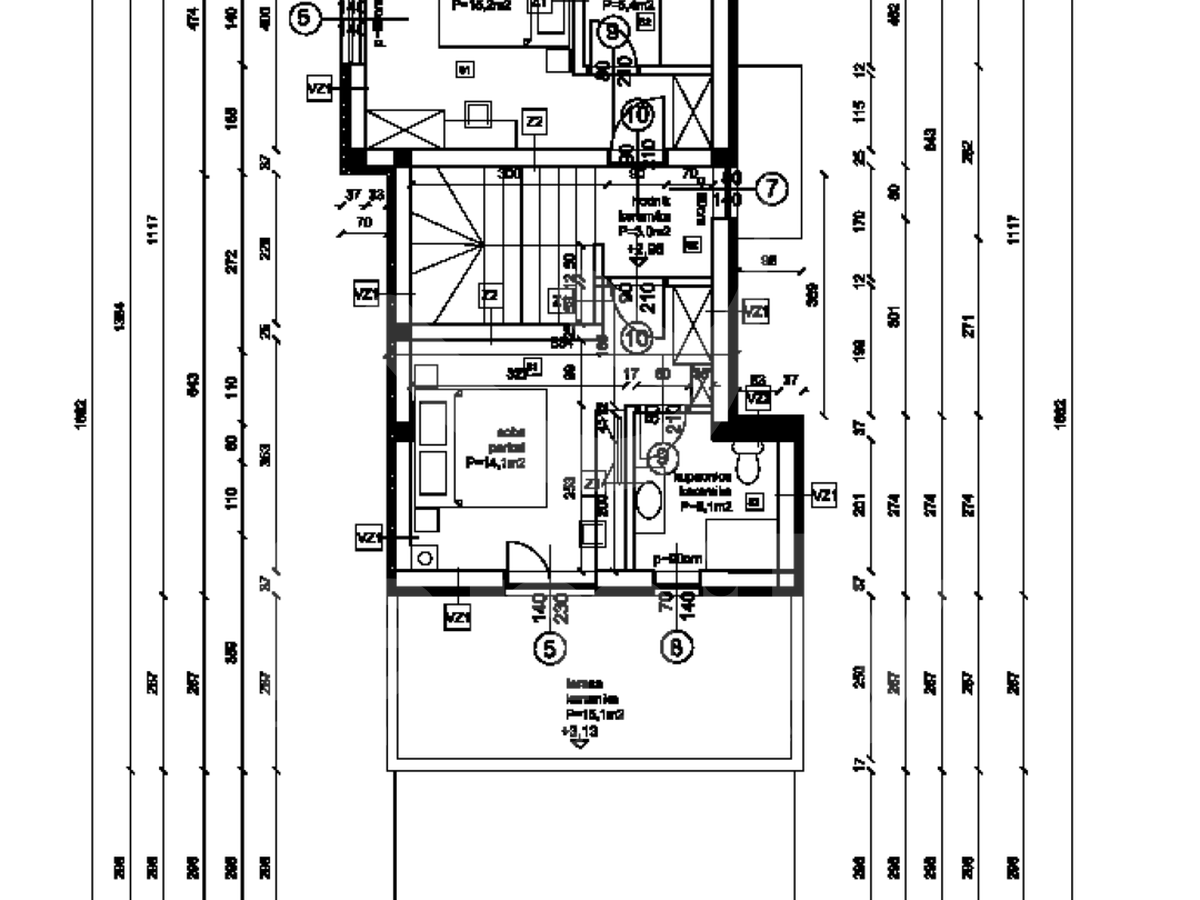
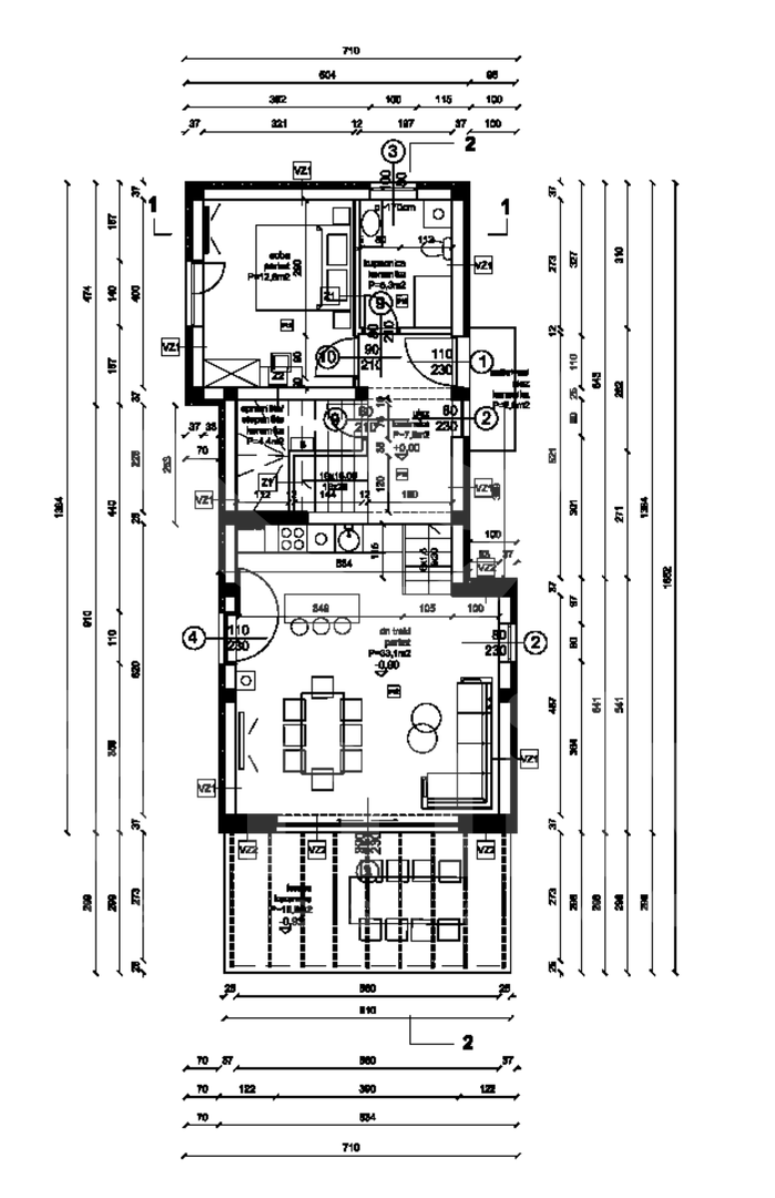
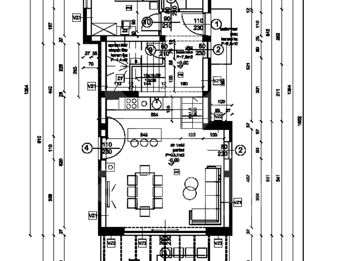
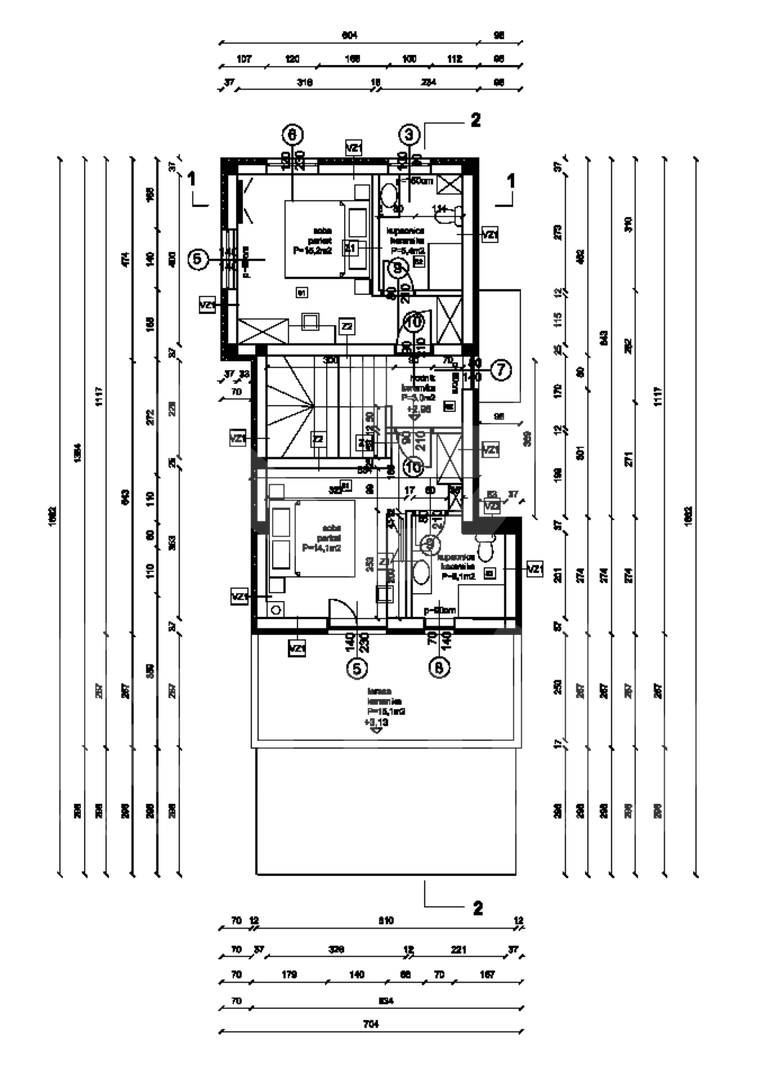
Na mirnoj i slikovitoj lokaciji nedaleko od šarmantnog naselja Svetvinčenta, smjestilo se atraktivno građevinsko zemljište površine 526 m² – idealna prilika za realizaciju vaše mediteranske oaze. Zemlijšte se nalazi na izuzetno ugodnoj i privatnoj poziciji, kao zadnje građevinsko zemljište u nizu, okružena prirodom i tek s nekoliko susjednih objekata, što osigurava mir i diskreciju. Orijentacija sjever–jug omogućuje obilje prirodnog svjetla i otvorene, ugodne poglede na okolni krajolik. Posebna vrijednost ove nekretnine je što se prodaje s važećom građevinskom dozvolom i projektom za modernu vilu s bazenom, čime je budućem vlasniku omogućeno da gradnju započne gotovo odmah. Predviđena vila prostire se na dvije etaže (prizemlje + kat) s ukupnom građevinskom bruto površinom od 148,33 m², uz dodatnu terasu od 16 m² koja savršeno spaja interijer s vanjskim prostorom. Projekt predviđa elegantnu vilu s tri prostrane spavaće sobe i prozračnim dnevnim boravkom koji se otvara prema dvorištu i bazenu površine 40 m², stvarajući idealan prostor za opuštanje, druženja i uživanje u istarskom načinu života. Na zemljište su već dovedeni priključci vode i električne energije, što dodatno pojednostavljuje i ubrzava početak gradnje, čestica je pravilnog pravokutnog oblika i ravnog terena.
Ova nekretnina predstavlja izvrsnu priliku za izgradnju luksuzne privatne vile ili investiciju u turistički najam, u jednoj od najpoželjnijih i autentičnih regija Istre.
ZA SVE OSTALE INFORMACIJE NAZOVITE NA:
+385 97 7744 467
danijela.milotic@family-nekretnine.hr
Danijela Milotić
Asistent u posredovanju
Dodatne informacije
- Vlasništvo: Uredno
- Vlasnički list: Da
- Lokacijska dozvola: Da
- Građevinska dozvola: Da
Lokacija